進口氣動食品 /衛生 球閥
德***萊克閥門中***總代理-germany lik valves international
進口氣動食品 /衛生 球閥概述
進口氣動食品 /衛生 球閥皆經過精密的檢驗流程和嚴格的品質管理。加工過程中,流道經過精密拋光和滅菌處理。密封圈為全封閉式緊緊包裹住閥球,無空間和死角。兩端為卡箍連接方便拆卸、清洗、維修工作原理也是通過氣動執行器90度的旋轉來帶動球體的旋轉以達到介質的流通與阻斷
■孔徑大小與管道 致,不產生沉淀物
■流道內壁240Grit拋光,保證流道暢通無阻
■采用全包的PTFE密封沒有死角,易清洗
■雙層閥桿填料與對壓碟型彈片裝置
進口氣動食品 /衛生 球閥參數
|
氣動執行器
|
雙作用、單作用
|
|
驅動氣源
|
5-7bar壓縮空氣
|
|
氣動附件
|
限位開關、定位器、電磁閥
過濾減壓閥、手輪機構
|
|
公稱通徑
|
Φ 20-Φ 102
|
|
公稱壓力
|
PN1.6
|
|
適用溫度
|
PTFE:-30~+180℃
|
|
連接方式
|
卡箍快裝式
|
|
閥體結構
|
三塊式
|
|
閥體材質
|
304、316、316L
|
|
閥板材質
|
304、316、316L
|
|
閥座襯里
|
PTFE
|
|
適用介質
|
用于食品、醫藥等衛生 別工況
|
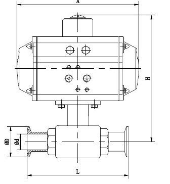
進口氣動食品 /衛生 球閥尺寸圖

進口氣動食品 /衛生 球閥尺寸數據
|
規格
ISO
|
d
|
D
|
L
|
A
|
H
|
|
020
|
16
|
50.5
|
102
|
144
|
144
|
|
025
|
21
|
50.5
|
117
|
144
|
149
|
|
032
|
29
|
50.5
|
125
|
144
|
156
|
|
038
|
35
|
50.5
|
140
|
163
|
180
|
|
a51
|
47
|
64
|
180
|
214
|
206
|
|
063
|
59
|
77.5
|
200
|
214
|
212
|
|
076
|
72
|
91
|
220
|
'252
|
230
|
|
f189
|
80
|
106
|
235
|
252
|
235
|
|
0102
|
97
|
119
|
275
|
270
|
256
|