進口電動蒸汽調節閥
德***萊克閥門中***總代理-germany lik valves international
產品介紹
調節閥又名控制閥是過程控制系統中用動力操作去改變介質流量、壓力、溫度、液位等工藝參數的 終控制元件。調節閥由執行機構和閥體部件組成,產品類型很多,結構多種多樣,而且還在不斷地更新和變化。 般來說,閥體是通用的,即可以和氣動執行器匹配,也可以與電動執行機構或其它執行機構匹配使用。
調節閥可分為直行程和角行程;按其所配執行機構使用的動力,按其功能和特性分為線性特性,等百分比特性及拋物線特性三種。調節閥適用于空氣、水、蒸汽、各種腐蝕性介質、泥漿、油品等介質。
產品詳情
進口電動蒸汽調節閥是由直行程全電子式電動執行機構和直通低流阻平衡型套筒閥組成.具有結構緊湊,重量輕,動作靈敏,流體通道呈S流線型,壓降損失小,閥容量大,流量特性精確,直接接受調節儀表輸入的(4-20mA DC 0-10mA DC或1-5V DC)等控制信號及單相電源即可控制運轉,實現對工藝管路流體介質的自動調節控制,廣泛應用于精確控氣體,液體,蒸汽等介質的工藝參數如壓力,流量,溫度,液位等參數保持在給定值.是符合IEC標準的新 代通用調節閥產品.
進口電動蒸汽調節閥-結構特點:
1.ZDLM電子式電動套筒調節閥是自動化控制系統中儀表的執行單元,以AC220V電源電壓作動力,接受來自DCS,PLC系統或調節儀表,操作器等輸入的(4-20mA,0-10mA或1-5VDC)電流信號或電壓信號,即可控制運轉,采有機電 體化結構,具有機內伺服操作和開度信號位置反饋,位置指示,手動操作等功能,功能強,性能可靠,連線簡單,調節精度高,以直行程輸出的推力改變閥門開度位移,達到對流體介質的工藝參數精確調節控制
2.ZDLM電子式電動套筒調節閥按作用模式可分;
正作用:電閉式-常開型(當電信號增大時閥位向下位移),《B型》
反作用:電開式-常閉型(當電信號增大時閥位向上位移),《K型》
3.ZDLM電子式電動套筒調節閥為直通套筒鑄造球形閥,采用了平衡型閥芯,不平衡力小,操作穩定適用于閥前閥后壓差大且泄漏稍大的工作場合.
4.直通低流阻套筒閥閥芯采用了壓力平衡籠式閥芯結構,閥芯為圓柱型,經過精密加工開出 定特性的窗孔,由套筒的內圓導向和頂導向,因而閥桿上不平衡力很小,操作穩定,性能好,是 種力平衡型的調節閥.適用于閥前后兩端壓差較高的場合,由于閥芯有套筒的側面導向,受渦流沖擊所產生的振動被減弱,故具有噪音低,空化閃蒸作用小,使用壽命長等優點.但閥座泄漏率較單座閥稍大.
5.通過改變閥芯形狀的設計;不同的閥芯窗孔形狀會得到不同流量特性值:等百分比(對數)性,直線性.
本系列產品廣泛應用于化工,石油,冶金,電站,輕紡,造紙和制藥等工業生產過程的自動化調節和遠程控制.
有標準型,波紋管密封型,夾套保溫型等品種.產品壓力等 有PN1.6 4.0 6.4MPa;公稱通徑DN25~300mm;適用流體溫度有-100~+500℃;按溫度高低配用不同閥蓋可分常溫型,高溫型和低溫型.


進口電動蒸汽調節閥-執行機構主要技術參數:
| 型號 |
輸出推力N |
速度mm/s |
大行程(mm) |
型號 |
輸出推力N |
速度mm/s |
大行程(mm |
381LSA-08
381LXA-08 |
800
800 |
4.2
4.2 |
30 |
PSL201 |
1000 |
0.4/1.2 |
50 |
381LSA-20
381LXA-20 |
2000
2000 |
2.1
2.1 |
30 |
PSL202 |
2000 |
0.4/1.2 |
50 |
381LSB-30
381LXB-30 |
3000
3000 |
3.5
3.5 |
60 |
PSL204 |
4500 |
0.4/1.2 |
50 |
381LSB-50
381LXB-50 |
5000
5000 |
1.7
1.7 |
60 |
PSL208 |
8000 |
1.0 |
50 |
| 381LSC-65 |
6500 |
2.8 |
100 |
PSL210 |
10000 |
1.0 |
50 |
| 381LSC-99 |
10000 |
2.0 |
100 |
PSL312 |
12000 |
1.0 |
65 |
| 381LSC-160 |
16000 |
1.0 |
100 |
PSL325 |
25000 |
1.0 |
100 |
| (信號線用屏蔽線) 防護等 :相當IP55 隔爆標志:ExdⅡBT4 帶手柄 |
(信號線用屏蔽線) 防護等 :IP65 帶手輪 |
進口電動蒸汽調節閥-性能指標:
| 項目 |
指標值 |
| 基本誤差% |
381L ±2.5; PSL±1.0 |
| 回差% |
381L ±2.0; PSL±1.0 |
| 死區% |
1.0 |
| 始終點偏差% |
電開 |
始點 |
±2.5 |
| 終點 |
±2.5 |
| 電關 |
始點 |
±2.5 |
| 終點 |
±2.5 |
| 可調范圍 |
50:1 |
| 額定行程偏差% |
2.5 |
進口電動蒸汽調節閥-允許壓差: MPa(同 格內上行為雙密封型允許壓差,下行為單密封型允許壓差)
| 公稱通徑(mm) |
25 |
32 |
40 |
50 |
65 |
80 |
100 |
125 |
150 |
200 |
250 |
300 |
| 閥座直徑(mm) |
25 |
32 |
40 |
50 |
65 |
80 |
100 |
125 |
150 |
200 |
250 |
300 |
| 執行機構 |
允許壓差△P(MPa) |
| 配PSL |
PSL202 |
6.4
3.14 |
6.4
1.92 |
6.4
1.23 |
5.1
0.78 |
|
|
|
|
|
|
|
|
| PSL204 |
|
4.31 |
2.76 |
1.76 |
6.4
1.04 |
6.4
0.69 |
5.62
0.44 |
|
|
|
|
|
| PSL208 |
|
|
|
|
1.86 |
1.23 |
0.78 |
6.4
0.50 |
5.31
0.35 |
3.97
0.20 |
|
|
| PSL320 |
|
|
|
|
|
|
|
1.26 |
0.87 |
0.49 |
6.4
0.32 |
4.14
0.22 |
| 配361L |
381LSA-20 |
6.4
3.14 |
6.4
1.92 |
6.4
1.23 |
6.4
0.78 |
|
|
|
|
|
|
|
|
| 381LSB-50 |
|
|
|
|
6.4
1.16 |
6.4
0.76 |
6.25
0.49 |
|
|
|
|
|
| 381LSC-65 |
|
|
|
|
|
|
|
6.4
0.64 |
4.32
0.41 |
3.23
0.28 |
|
|
| 381LSC-99 |
|
|
|
|
|
|
|
0.63 |
0.44 |
0.25 |
3.31
0.16 |
0.27
0.11 |
進口電動蒸汽調節閥-主要零件材料及適用介質溫度:
| 公稱通徑mm |
DN15-DN300 |
| 材料代號 |
C(WCB) |
P(304) |
R(316) |
主要
零件 |
閥體,閥蓋 |
WCB(ZG230-450) |
ZG1Cr18Ni9Ti(304) |
ZG1Cr18Ni12Mo2Ti(316) |
| 閥芯,閥座 |
1Cr18Ni9Ti(304)或司鈦萊合金堆焊 |
1Cr18Ni9Ti(304)或司鈦萊合金堆焊 |
1Cr18Ni12Mo2Ti(316)或司鈦萊合金堆焊 |
| 閥桿 |
2Cr13 |
1Cr18Ni9Ti |
1Cr18Ni12Mo2Ti |
| 填料 |
V型聚四氟乙烯(F4),柔性石墨,不銹鋼波紋管 |
| 墊片 |
增強聚四氟乙烯(F4) ,不銹鋼墊片,金屬石墨纏繞墊片 |
| 推桿,襯套 |
2Cr13 |
適用
工況 |
適用介質 |
水蒸汽油品類氣液體 |
硝酸堿類腐蝕性氣液體 |
醋酸類等腐蝕性氣液體 |
| 常溫型 |
-30~+250 F4:≤200℃ |
-40~+250 F4:≤200℃ |
-40~+250℃ F4:≤200℃ |
| 高溫型 |
-30~+450℃ |
-40~+500℃ |
-40~+500℃ |
| 低溫型 |
|
-40~-60℃, -60~-100℃ |
進口電動蒸汽調節閥-流量特性示圖:

進口電動蒸汽調節閥-主要技術參數:
| 公稱通徑mm |
20 |
25 |
32 |
40 |
50 |
65 |
80 |
100 |
125 |
150 |
200 |
250 |
300 |
| 閥座直徑mm |
20 |
25 |
32 |
40 |
50 |
65 |
80 |
100 |
125 |
150 |
200 |
250 |
300 |
額定流量
系數Kv |
直線 |
6.9 |
11 |
17.6 |
27.5 |
44 |
69 |
110 |
176 |
275 |
440 |
690 |
1100 |
1760 |
| 等百分比 |
6.3 |
10 |
16 |
25 |
40 |
63 |
100 |
160 |
250 |
400 |
630 |
1000 |
1600 |
| 額定行程L(mm) |
10 |
16 |
25 |
40 |
60 |
100 |
| 執行器型號 |
3810L |
381LS-8 |
381LS-20 |
381LS-30 |
381LS-50 |
381LS-65 |
381LS-99 |
| PSL |
PSL201 |
PSL202 |
PSL204 |
PSL208 |
PSL312 |
PSL325 |
| |
防爆型 |
381LX-20 |
381LX-30 |
381LX-50 |
381LX-65 |
381LX-99 |
| 電源電壓 |
AC220V 50Hz |
| 信號范圍 |
4~20mA DC 0~10mA DC或1~5V DC 0~10V DC |
| 作用模式 |
電開式(K)型,電閉式(B)型 |
| 故障狀態時 |
全開,全關,自鎖保位 |
| 流量特性 |
直線,等百分比 |
| 允許泄漏量(L/h) |
單密封符合IV 小于閥的額定容量×10-4
雙密封符合Ⅲ 小于閥的額定容量×10-3 |
| 固有可調比R |
50:1 |
| 公稱壓力PN(MPa) |
1.6 2.5 4.0 6.4 |
進口電動蒸汽調節閥-產品應用規范:
GB/T7387 結構長度GB/T12221-05 材料:GB/T12228~12230
法蘭連接:JB/T79-94 GB/T9113
符合:IEC60534標準

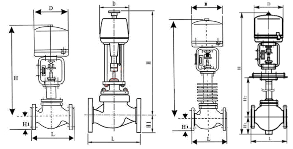
進口電動蒸汽調節閥-外形參數及連接尺寸:
| 公通徑(mm) |
25 |
32 |
40 |
50 |
65 |
80 |
100 |
125 |
150 |
200 |
250 |
300 |
| L(mm) |
PN1.6MPa |
185 |
205 |
220 |
254 |
275 |
300 |
350 |
410 |
451 |
600 |
670 |
735 |
| PN4.0MPa |
200 |
210 |
235 |
267 |
292 |
317 |
368 |
425 |
473 |
615 |
685 |
750 |
| PN6.4MPa |
210 |
220 |
251 |
286 |
311 |
337 |
394 |
440 |
508 |
630 |
700 |
765 |
| H1(mm) |
PN1.6MPa |
58 |
68 |
73 |
80 |
90 |
98 |
108 |
123 |
140 |
168 |
203 |
230 |
| H1(mm) |
PN4.0MPa |
58 |
68 |
73 |
80 |
90 |
98 |
115 |
135 |
150 |
188 |
223 |
255 |
| H1(mm) |
PN6.4MPa |
68 |
75 |
83 |
88 |
100 |
105 |
125 |
148 |
170 |
203 |
235 |
265 |
| 配PSL |
H(mm)≈ |
常溫型 |
614 |
630 |
635 |
640 |
712 |
739 |
761 |
930 |
940 |
960 |
1165 |
1185 |
| 高溫型 |
765 |
788 |
790 |
800 |
895 |
940 |
970 |
1150 |
1190 |
1220 |
1470 |
1490 |
| D(mm) |
176 |
225 |
| 配361L |
H(mm)≈ |
常溫型 |
665 |
725 |
731 |
755 |
957 |
980 |
1028 |
1329 |
1348 |
1423 |
1621 |
1734 |
| 高溫型 |
820 |
870 |
895 |
910 |
1125 |
1150 |
1195 |
1410 |
1586 |
1667 |
1884 |
2000 |
| D(mm) |
225 |
310 |
| 低溫型 |
-100℃ |
H2 |
500 |
600 |
700 |
|
|
| H≈ |
1120 |
1310 |
1320 |
1330 |
1460 |
1478 |
1497 |
1850 |
1860 |
1900 |
|
|
進口電動蒸汽調節閥-典型安裝應用案例:

進口電動蒸汽調節閥-訂貨須知:
⒈進口電動蒸汽調節閥valve產品型號與名稱;
⒉進口電動蒸汽調節閥valve公稱通徑DN;
⒊進口電動蒸汽調節閥valve連接形式;
⒋進口電動蒸汽調節閥valve公稱壓力和壓差;
⒌進口電動蒸汽調節閥valve額定流量系數KV;
⒍進口電動蒸汽調節閥valve流量特性;
⒎進口電動蒸汽調節閥valve適用溫度;
⒏進口電動蒸汽調節閥valve閥體和閥內組件材料;
⒐進口電動蒸汽調節閥valve電源電壓和控制信號;
⒑進口電動蒸汽調節閥valve是否帶附件以便為您正確選型;