潛水攪拌機QJB2.2/8-320/3-740南京碧海環保
價 格:詢價
產 地:江蘇 南京市更新時間:2024-12-06 17:35
品 牌:其他型 號:
狀 態:正常點擊量:1332
上海非利加實業有限公司
聯 系 人: 上海非利加實業有限公司
電 話: 400-006-7520
傳 真: 400-006-7520
配送方式: 上海自提或三方快遞
聯系我時請說在上海非利加實業有限公司上看到的,謝謝!
產品參數
產品介紹
適用范圍:
攪拌機在下列條件下應能正常連續運行:
1 高介質溫度不超過40°C;
2 介質的PH 值在5~9 間;
3 液體密度不超過1150kg/m3;
4 長期潛水運行,潛水深度 般不超過20m。
重點注意事項:
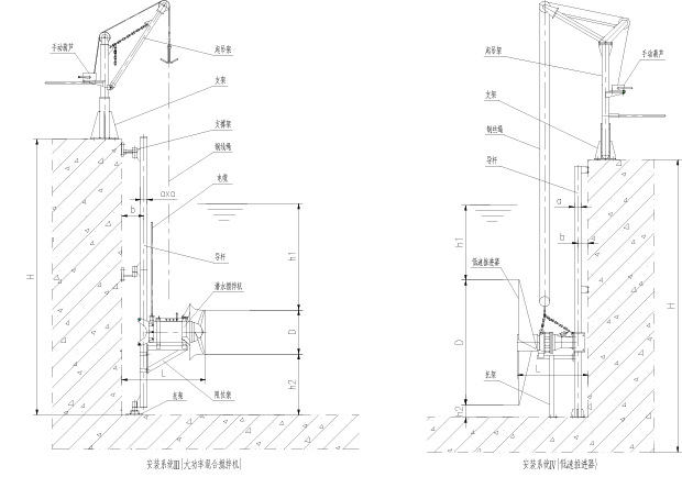
潛水攪拌機必需完全潛入水中工作;不能在易燃易爆或有強腐蝕性液體的環境中工作;鋼膨脹螺栓須按要求固定,安裝完畢后,必須將電纜拉緊固定好.
潛水推流器選型時,漿葉直徑超過2M,建議使用齒輪箱減速機.

性能特點:
1 結構緊湊、操作維修簡單、安裝檢修方便、使用壽命長;
2 葉輪具有 佳的水力設計結構,工作效率高,后掠式葉片具有自潔功能,可防雜物纏繞、堵塞;
3 與曝氣系統混合使用可使能耗大幅度降低,充氧量明顯提高,有效防止沉淀;
4 電機繞組 緣等 F ,防護等 為IP68,選用優質軸承和電機防凝露裝置,使電機的工作更安全;
5 兩道機械密封;



性能參數:
攪拌機在額定電壓380V,頻率為50Hz,繞組 緣等 F ,防護等 IP68,工作制式Ⅰ條件下。



選型注意事項:
潛水攪拌機的選型是 項比較復雜的工作,選型的正確與否直接影響設備的正常使用,作為選型的原則就是要讓攪拌機在適合的容積里發揮充分的攪拌功能, 般可用流速來確定。根據污水處理廠不同的工藝要求,攪拌機 佳流速應保證在0.15~0.3m/s 之間,如果低于0.15m/s 的流速則達不到推流攪拌效果,超過0.3m/s 的流速則會影響工藝效果且造成浪費。所以在選型前 確定潛水攪拌機運用的場所,如:污水池、污泥池、生化池;其次是介質的參數,如:懸浮物含量、粘度、溫度、PH 值;還有水池的形狀、水深等。攪拌機所需的配套功率是按容積大小、攪拌液體的密度和攪拌深度而確定的,根據具體情況采用 臺或多臺攪拌機。
混合攪拌型
1 根據圖B1 或表B1 確定待攪拌介質的污泥校正系數。
2 根據圖B2 或表B2 確定攪拌池的池型校正系數。
3 按每立方米清水所需耗功5 w,乘以污泥校正系數,再乘以池型校正系數,得出每立方米待混合攪
拌介質所需耗功的實際值,再乘以待攪拌介質的體積,得出整池待混合攪拌介質所需的功率。
低速推流型
1 根據圖B1 或表B1 確定攪拌池的池型校正系數。
2 根據圖B2 或表B2 確定待攪拌介質的污泥校正系數。
3 根據攪拌介質初始流速y,通過圖B3 確定單位流量的耗功。
4 用攪拌介質初始流速y 乘以葉輪旋轉時所形成的截面積計算出攪拌機的流量。
5 用攪拌機的流量乘以單位流量的功耗,再乘以污泥校正系數和池型校正系數,即可得出整池介質所
需的功率。







不同大小的設備用不同的裝箱,保證設備外觀完好 ,安裝系統支架因為外觀不規則,我們會用軟材包裝好 起發送,如在運輸過程中有所損失,請諒解。

物流運輸箱內:設備主機+合格證+安裝說明書+配件

碧海是環保設備的 生產型企業,公司致力于打造環保行業 的環保設備供應商。公司位于江蘇省南京市六合區龍池街道雄州南路399號恒盛園,是 ***擁有自主研發及生產銷售的
企業。
碧海環保秉承“精心設計,技術創新,持續改進,顧客滿意”的質量方針,精益服務,***求實,誠信共享,創業創新。目前,碧海環保已與***內外多*** 環保專業公司、高等院校和環
保研究機構建立長期戰略合作伙伴關系,為保護環境,造福人類作貢獻。
公司主營環保產品有:
混合攪拌機系列: QJB潛水攪拌機QJB沖壓式攪拌機QJB低速推流攪拌機雙曲面攪拌機槳式攪拌機框式攪拌機污泥回流泵浮筒攪拌機 潛水曝氣系列:射流曝氣機離心曝氣機深水曝氣
機浮筒攪拌曝氣機 攔污輸送系列:回轉式機械格柵無軸螺旋輸送機螺旋壓榨機沉砂池除砂機砂水分離器 刮泥機系列: 周邊傳動中心傳動 行車式虹吸式等刮吸泥機 水處理設備: 潷水
器地埋式管式靜態混合器閘門 潛水泵系列: AS AV WQ AF型潛污泵 等 。
南京碧海環保設備的誠信、實力和產品質量獲得業界的認可。歡迎各界朋友蒞臨參觀、指導和業務洽談。
聯系人: 朱奎 生 (銷售部 經理)
電話: 86 025 66160698
移動電話: 15951606242
傳真: 86 025 57756855
地址: 中*** 江蘇 南京市六合區 龍池街道 雄州南路399號恒盛園
郵編: 211500
公司主頁p>






滬公網安備31011502016460號